The Amazonia Range also offers addon options:

  • extra depth – 3.3m depth creating a footprint of 38.28m2
  • extra height – additional 55cm taking the height to 3m
  • verandah – full length outdoor living with slatted roof and sides

Images shown are samples of options available and are indicative only.

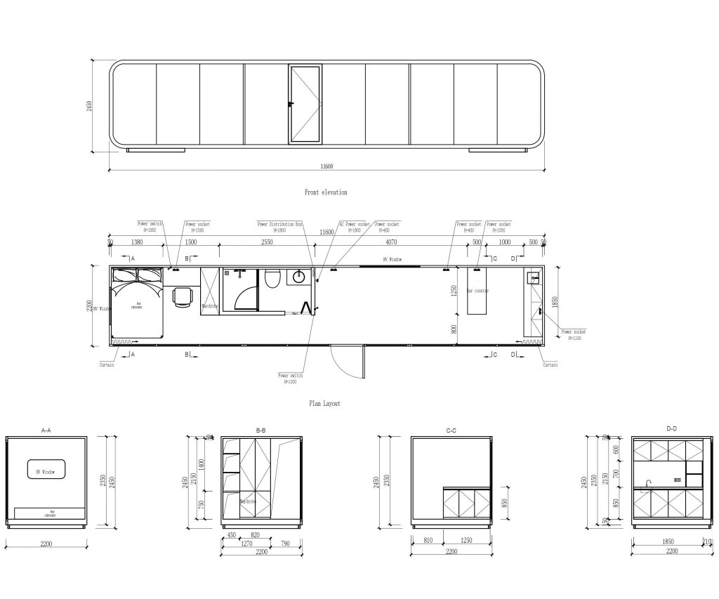
Floorplans and Elevations

Amazonia Standard Fitout includes a timber bed base with underbed drawers, bedside drawers, wardrobe, fold-down table, kitchenette with two-element cooktop, bathroom with shower and toilet, and vanity with hand basin.

Not quite what you’re after?

Talk to us about a custom fitout to create your perfect pod

Specifications

Amazonia – bare shell
(* Amazonia Plus)

Exterior
Length
11.6m
Exterior
Depth
2.2m / 3.3m *
Exterior
Height
2.45m / 3m *
Exterior
Footprint
25.52m2 / 38.28m2 *
Exterior Shell
3mm carbon fibre composite panel / 2mm aluminium panel *
Interior Walls
3mm carbon fibre composite panel / OSB lining *
FrameHot-dip galvanised
steel
Exterior Base50mm waterproof and thermally insulated composite base plate
Glazingthermal-break double glazed toughened glass
Insulation50mm XPS insulation
board
Flooring6mm SPC waterproof stone crystal
WindowRV-type exterior-opening with ventilation stop
ConnectionIP66 waterproof external power connector
Lighting7 x 12V LED recessed
lights
Power points7 x single in-wall power
sockets
CertificationAustralian and New zealand Standards (AS/NZS)

WCH Pods – extra space at your place