The Serengeti Range offers comfortable living options in a midsize footprint of 12.76m2, with room for not only a bathroom but a kitchenette as well. With a standard fitout designed for accommodation, these flexible pods are ideal for

  • studio apartment
  • in-law suite
  • guest room
  • yoga studio

The Serengeti Range also offers addon options:

  • extra depth – 3.3m depth creating a footprint of 19.14m2
  • extra height – additional 55cm taking the height to 3m
  • verandah – full length outdoor living with slatted roof and sides

Images shown are samples of options available and are indicative only.

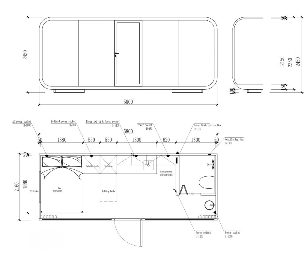
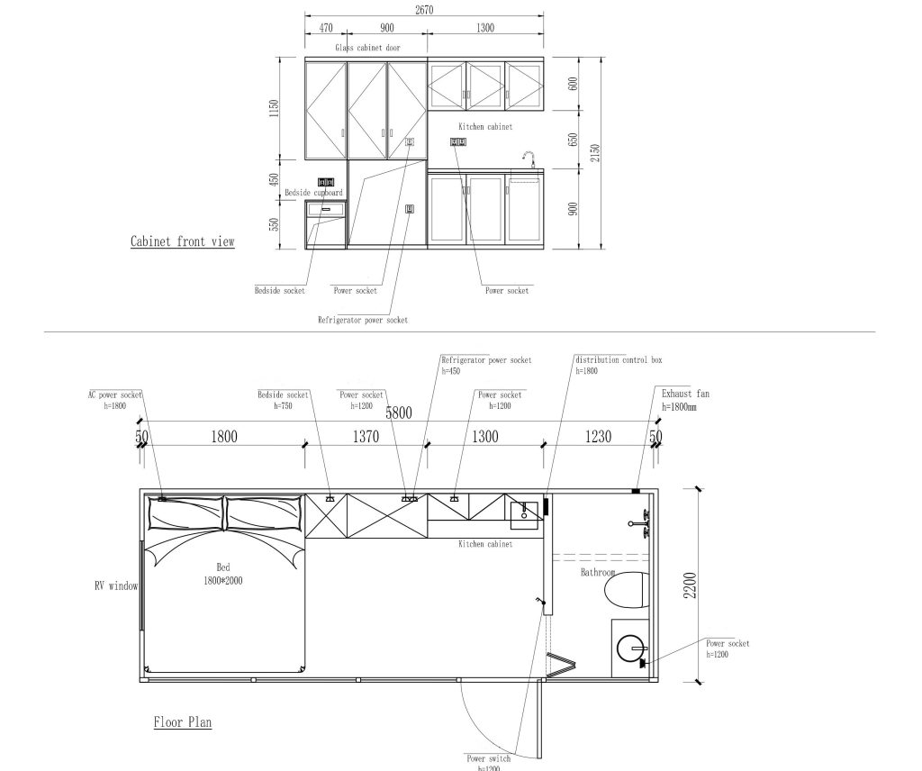
Floorplans and Elevations

Serengeti Standard Fitout includes a timber bed base with underbed drawers, bedside drawers, wardrobe, fold-down table, kitchenette with two-element cooktop, bathroom with shower and toilet, and vanity with hand basin.

Not quite what you’re after?

Talk to us about a custom fitout to create your perfect pod

Specifications

Serengeti – bare shell
(* Serengeti Plus)

Exterior
Length
5.8m
Exterior
Depth
2.2m / 3.3m *
Exterior
Height
2.45m / 3m *
Exterior
Footprint
12.76m2 / 19.14m2 *
Exterior Shell
3mm carbon fibre composite panel / 2mm aluminium panel *
Interior Walls
3mm carbon fibre composite panel / OSB lining *
FrameHot-dip galvanised
steel
Exterior base50mm waterproof and thermally insulated composite base plate
Glazingthermal-break double glazed toughened glass
Insulation50mm XPS insulation
board
Flooring6mm SPC waterproof stone crystal
WindowRV-type exterior-opening with ventilation stop
ConnectionIP66 waterproof external power connector
Lighting7 x 12V LED recessed
lights
Power points7 x single in-wall power
sockets
CertificationAustralian and New zealand Standards (AS/NZS)

WCH Pods – extra space at your place